APARTMENT RENOVATION

VICENZA, ITALY 

Construction works

Construction works

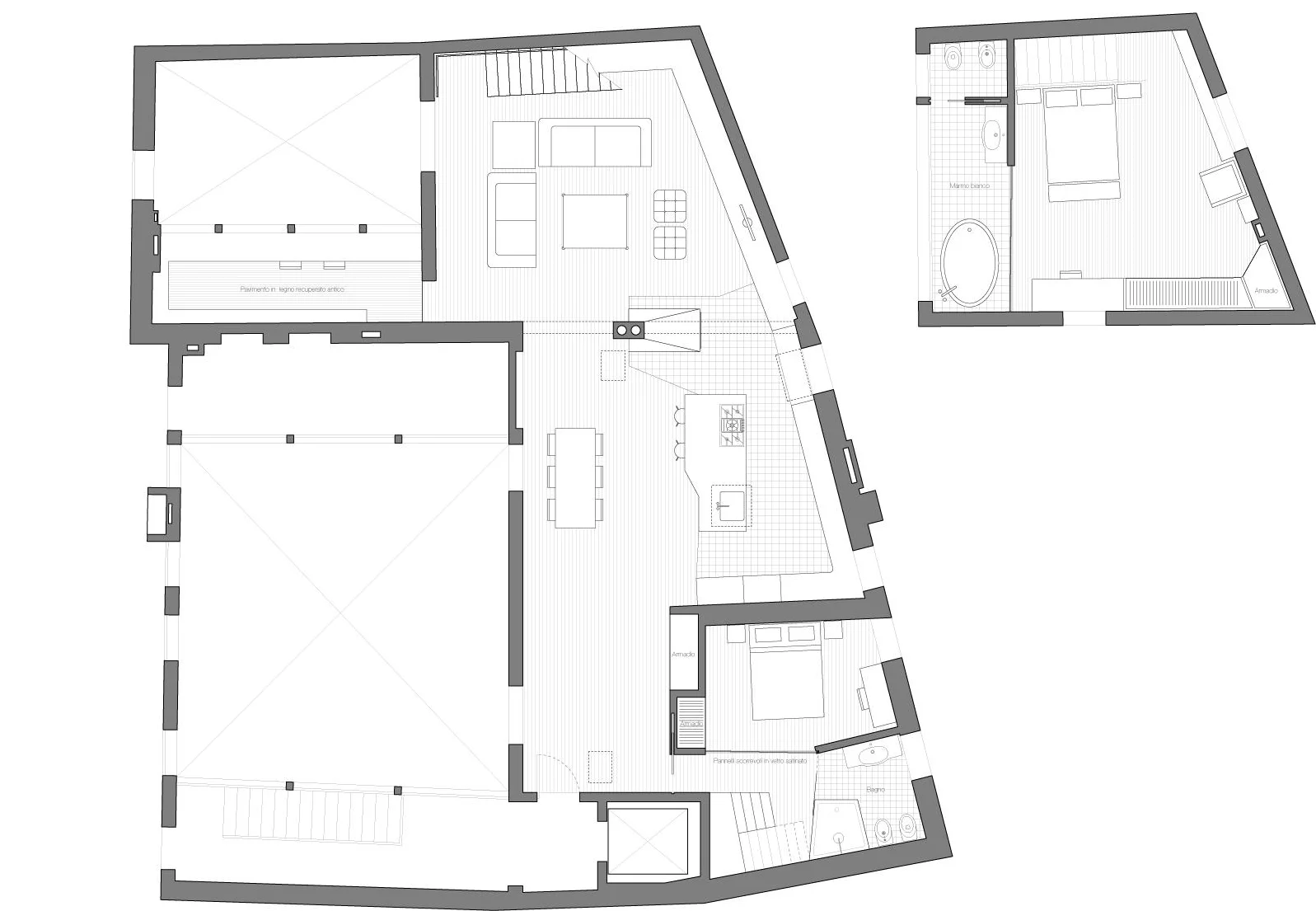
Located in the historic center of Vicenza, on the top floors of a historic palazzo, this apartment renovation attempts to strike a balance between its historic context and the requirements of contemporary living. The apartment program is distributed over two floors, with the shared functions on the lower floor and the more private spaces above. The lower level is opened up to create one large room, bringing together the dining and living spaces around a central fire place. 


Team: Aleris Rodgers, Francesco Valente-Gorjup

 

Plans - Main level and Bedroom loft

Plans - Main level and Bedroom loft

Section - Through the fireplace

Section - Through the fireplace